+34 600 075 507

info@yourhomes24.es

Parcela en Venta en Sant Josep De Sa Talaia

(Sant Josep De Sa Talaia)

2.600.000 €
Ref: 3239
Descripción

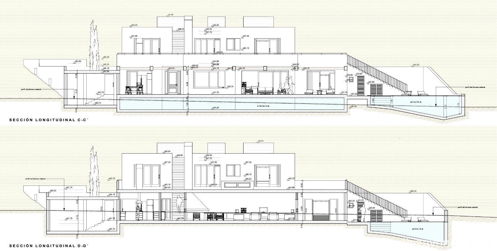
Parcela en un emplazamiento único con licencia. La parcela tiene una superficie de 25.377,50 m2. Proyecto de vivienda unifamiliar de 372 m2.  El terreno en forma de cuadrilátero irregular muy alargado, cuyo lado más meridional tiene un punto de tangencia con el camino de tierra actual. La parte sur del terreno tiene una pendiente relativamente suave, que se va empinando a medida que se asciende hacia el linde norte. Es esa parte sur la que se ha escogido para edificar la casa, tanto por ser la más inmediata al camino de acceso, como por ser la de pendiente más suave y más despejada de arbolado.(Vivienda 310 m2, garaje + aseo 41 m2, porches 8,7 m2, pérgola 11,75 m2)Tenemos muchas más casas, apartamentos, villas, fincas, locales comerciales y terrenos en alquiler y venta en la isla. Gracias por considerarnos como su agencia inmobiliaria en Ibiza.

Información
Parcela
25300 m²
Edificable:
Otras Características
Registrada:
Vistas:
Agua Traida:
Fosa Séptica:
Luz:
Orientación:
Localización
Visualizar ubicación en Google Street View
(Recordatorio: Este servicio depende exclusivamente de Google y no está disponible para todas las ubicaciones)