+34 600 075 507

info@yourhomes24.es

Parcela en Venta en Sant Antoni de Portmany

(Sant Antoni de Portmany)

1.150.000 €
Ref: 2960
Descripción

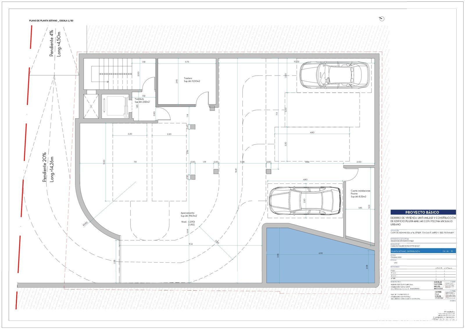
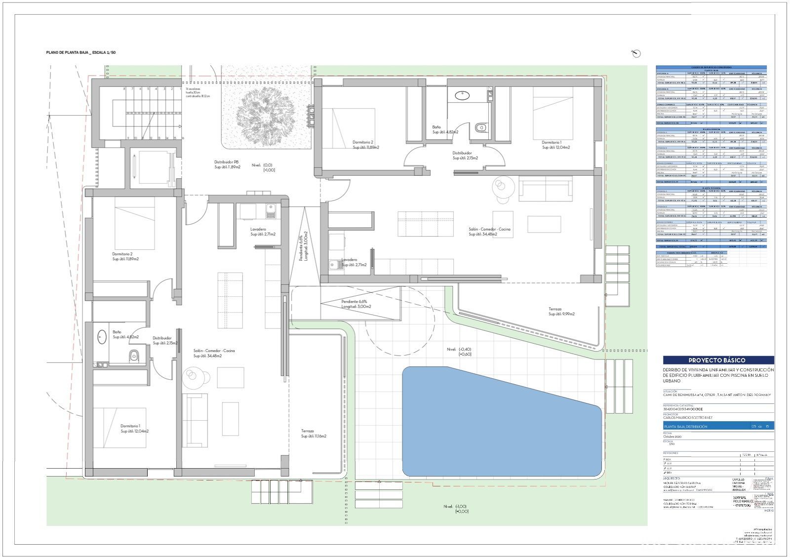
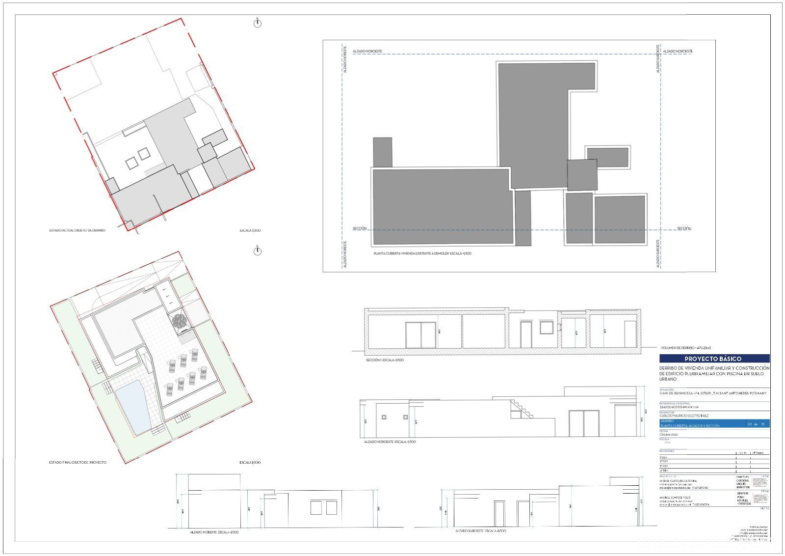
Se trata de una parcela con un edificio de 6 apartamentos con proyecto en Sant Antoni de Portmany. Cuenta con la licencia proyecto básico.La parcela es de 556 m2 con concesión de licencia para la construcción de un edificio plurifamiliar y con piscina en suelo urbano. En proceso de preparación del proyecto ejecutivo; en breve se podrá llevar a cabo la obra. El edificio está previsto que tenga 4 apartamentos muy amplios (más de 90 m2) + 2 áticos (más de 75 m2), un garaje subterráneo con 6 plazas de garaje y trasteros, y una piscina comunitaria. De acuerdo con la normativa urbana, está permitida la misma superficie cubierta que metros del solar en 3 alturas. Sin embargo los lindes al sur de la propiedad son zona rústica. Y no se puede superar más de una altura por lo que el edificio gozará permanentemente de vistas y sol sin obstáculos.Actualmente existe una construcción que debe derribarse.Tenemos muchas más casas, apartamentos, villas, fincas, locales comerciales y terrenos en alquiler y venta en la isla. Gracias por considerarnos como su agencia inmobiliaria en Ibiza.

Información
Parcela
556 m²
Edificable:
Otras Características
Registrada:
Vistas:
Agua Traida:
Fosa Séptica:
Luz:
Orientación:
Localización
Visualizar ubicación en Google Street View
(Recordatorio: Este servicio depende exclusivamente de Google y no está disponible para todas las ubicaciones)