+34 600 075 507

info@yourhomes24.es

Piso en Venta en Almeria

(Almeria)

275.000 €
Ref: 3230-02303/1846
Descripción

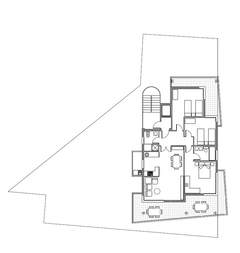
Os presentamos este edificio en La Rambla de Almería.

Edificio de 5 viviendas, una vivienda por planta. Ideal para la tranquilidad y disfrutar de la piscina comunitaria sin muchos vecinos.

Consta de tres habitaciones, un baños y un aseo, salón-comedor, doble terraza. Una de ella muy amplia para poder hacer reuniones con amigos.

Esta propiedad se caracteriza por sus excepcionales acabados de alta calidad, ya que han sido elegidos cuidadosamente para ofrecer los mejores acabados.

Se encuentra en una zona tranquila, cerca de la Rambla de Almería donde podrás dar paseos. Tiene supermercados, líneas de bus, centros médicos y colegios muy próximos.

Para más información llámenos!! Te esperamos!!

Información
Piso
3 hab.
Otras Características
Necesita Reforma:
Amueblado:
A. Acondicionado:
Trastero:
Bodega:
Cocina Americana:
Cocina Amueblada:
Luminoso:
Vistas: