+34 600 075 507

info@yourhomes24.es

Piso en Venta en La Adrada

(La Adrada)

59.000 €
Ref: ADR_PISO_IGLESIA
Descripción

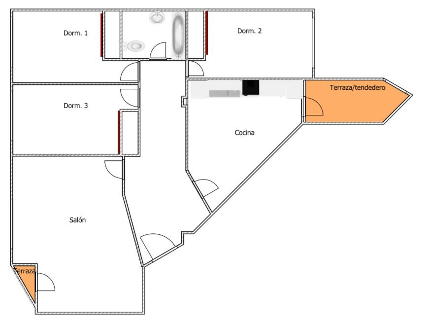
Precioso piso en urbanización cerrada con calefacción, plaza de garaje y trastero.
SIN COMISIONES AL COMPRADOR: excelente piso en pleno centro de La Adrada: calle de la Iglesia, con todo lo necesario para hacerte el día a día más cómodo:
-Calefacción de gas natural
-Plaza de garaje y trastero (muy grande) incluido en el precio
-Tres dormitorios y un baño
-Cocina equipada
-Dos terrazas: una en el salón y otra en la cocina (tendedero)
¿A qué esperas? Llama ya al 682 441 683.

Información
Piso
93 m²
3 hab.
Otras Características
Necesita Reforma:
Amueblado:
Trastero:
Bodega:
Cocina Americana:
Cocina Amueblada:
Luminoso:
Vistas:
Localización
Visualizar ubicación en Google Street View
(Recordatorio: Este servicio depende exclusivamente de Google y no está disponible para todas las ubicaciones)