+34 600 075 507

info@yourhomes24.es

En pleno Centro de Vigo (Cl Oporto). A reformar

Arenal-Centro (Vigo)

152.000 €
Ref: P011558
Descripción

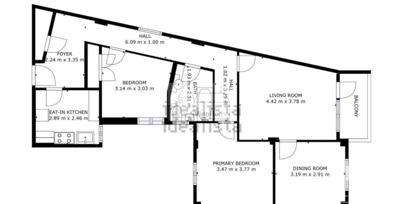
Se vende este piso en el CORAZÓN DE VIGO con gran potencial, inversión asegurada. En una de las zonas más cotizadas de Vigo, disponemos de esta propiedad de más de 90m² (superficie catastral)
Aprovecha la oportunidad, de en pleno centro de Vigo, diseñar el piso de tus sueños o de realizar una muy buena INVERSIÓN, siendo en la actualidad una zona con gran demanda para el alquiler.

La vivienda en la actualidad se distribuye en tres habitaciones. Salón comedor con acceso a terraza. Un baño y Cocina independiente

CONTÁCTANOS y no dejes pasar esta Oportunidad

Para más información, visitas y Reservas en VigoHome. Consúltanos sin compromiso y le ayudaremos a encontrar el hogar que mejor se adapte a sus necesidades.

Puedes ver el resto de nuestras propiedades disponibles en nuestra página web, ponte en contacto con nosotros y estaremos encantados en orientarte en la compra de tu vivienda. Te acompañaremos y asesoraremos en el proceso de la compraventa hasta la entrega de llaves.
Asesórate con nosotros. Ofrecemos estudio financiero gratis donde podrás conseguir una financiación a tu medida (sujeta a estudio)
Contáctanos ya!! A través de este formulario, llamándonos o a través de nuestra web www.vigohome.com

Información
Piso
92 m²
3 hab.
1 Baños
Otras Características
Año de Cons: 1969
Ascensor:
Necesita Reforma:
Terraza:
Certificado Energético