+34 600 075 507

info@yourhomes24.es

PISO EN LA CUÑA CON ASCENSOR CALEFACCION Y PLAZA DE GARAJE

A Cuña (Ourense)

103.000 €
Ref: P154851
Descripción

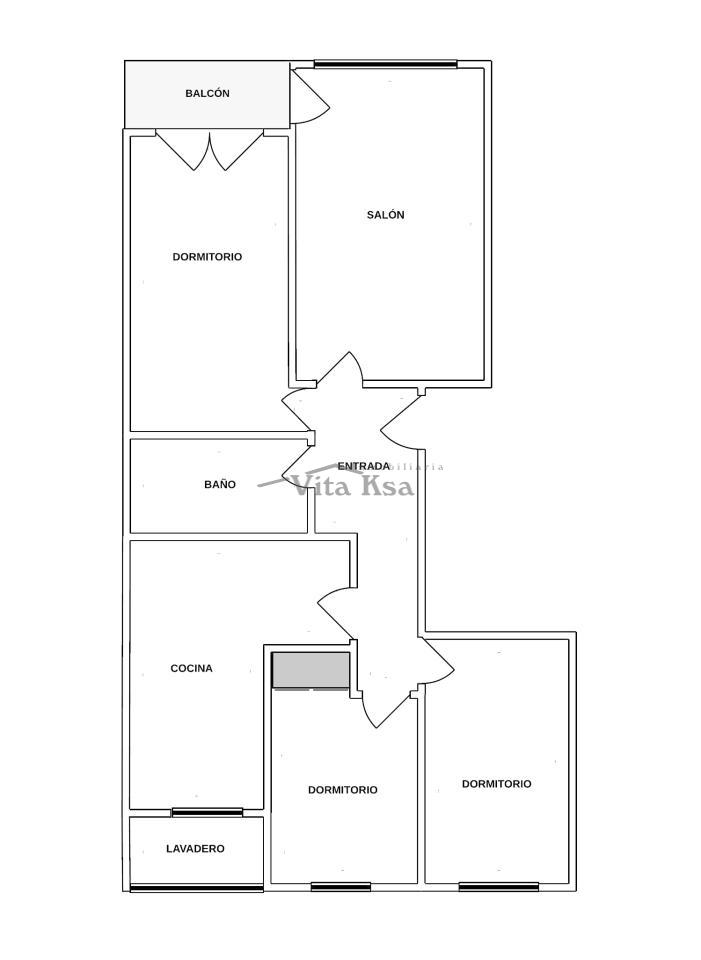
Piso soleado , exterior con todos los servicios, en la zona de la Cuña. Próximo al centro de Salud y supermercado. Se distribuye en salón, con acceso a balcón, dormitorio principal también, con acceso a balcón. Cocina amueblada, con galería y lavadero. Dos dormitorios adicionales y un cuarto de baño. Se complementa con un trastero, y dispone de plaza de garaje en el edificio.

###En VitaKsa Inmobiliaria, estamos para ayudarte. Confía en nosotros para la búsqueda de tu propiedad en venta o en alquiler. Te asesoramos de manera profesional durante todo el proceso.###
>>>Queremos ser tu inmobiliaria en Orense. <<<
Estamos en la Calle Sainza, nº 42. Puedes llamarnos al 988220020 o por Whastapp: 698100020
Síguenos en Facebook e Instagram: VitaKsa Inmobiliaria.

Información
Piso
85 m²
3 hab.
1 Baños
Otras Características
Año de Cons: 1988
Ascensor:
Garaje:
Calefacción:
Trastero:
Cocina Amueblada:
Exterior:
Electrodomésticos:
Certificado Energético