+34 600 075 507

info@yourhomes24.es

Piso en Venta en Málaga

(Málaga)

165.000 €
Ref: 13320/4577
Descripción

¿Te gustaría vivir a 15 minutos andando de la Playa de Huelin? ¿En un barrio con infinidad de comercios y servicios? ¿Con paradas de autobuses en la misma puerta? ¿Y paradas de metro a 200 m? ¿En un edificio tranquilo, de buena vecindad y con ascensor?

Pues tenemos lo que buscas!!! Sigue leyendo!!!

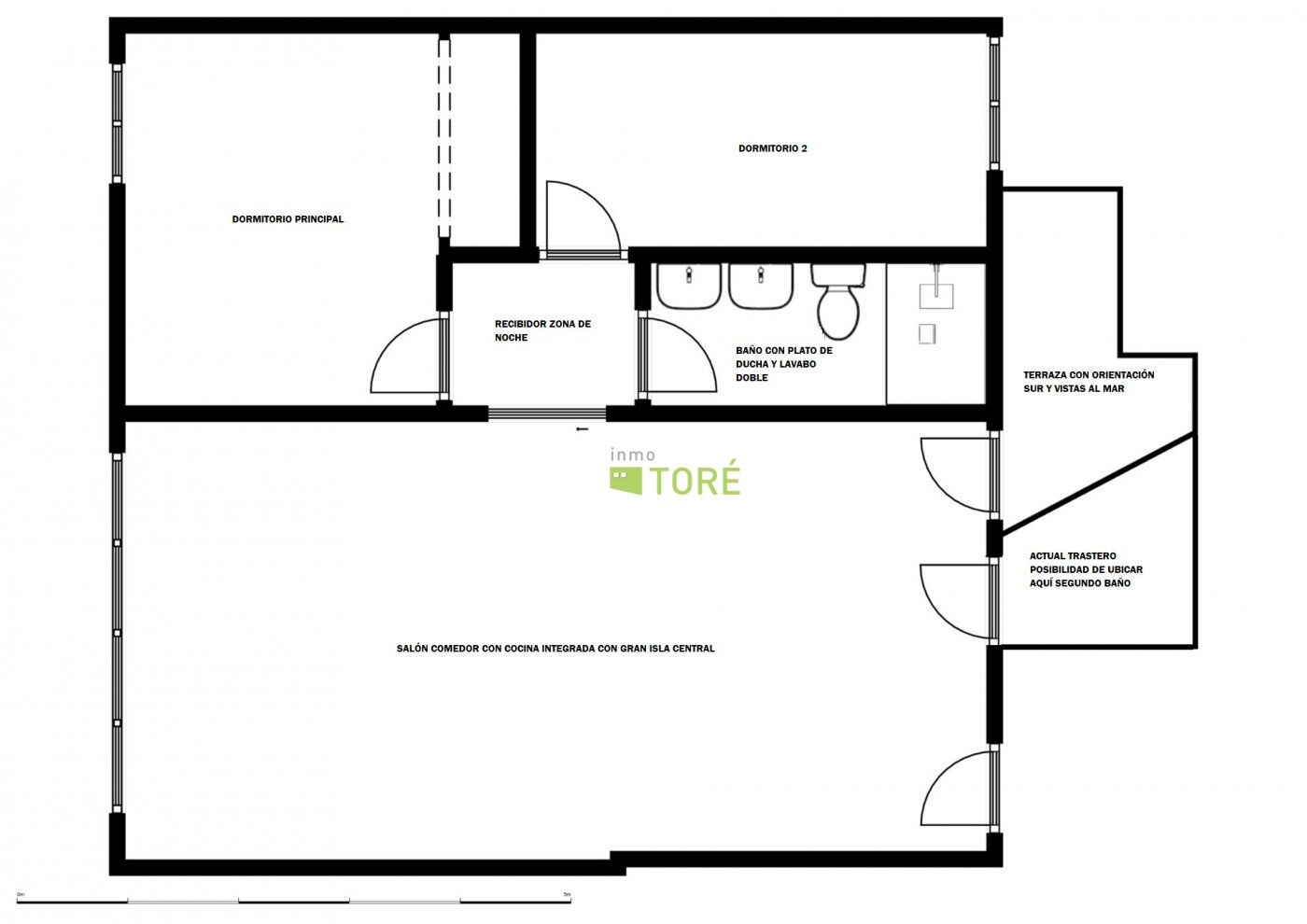
Piso que consta de amplio recibidor, cocina independiente, salón comedor con acceso a terraza acristalada, tres dormitorios y un baño. El piso es muy luminoso y con muchas posibilidades.

No lo pienses más, este será tu hogar!!!

“En cumplimiento del Decreto de la Junta de Andalucía 2182005 de 11 de octubre, se informa al cliente que los gastos notariales, registrales, ITP y otros gastos inherentes a la compra, NO están incluidos en el precio. Los gastos de intermediación inmobiliaria NO están incluidos en el precio y ascienden a 1.500 euros más IVA (21%). El consumidor tiene derecho a que se le entregue una copia del correspondiente documento informativo abreviado (DIA) de la vivienda.”

Información
Piso
3 hab.
Otras Características
Necesita Reforma:
Amueblado:
Trastero:
Bodega:
Cocina Americana:
Cocina Amueblada:
Luminoso:
Vistas: