+34 600 075 507

info@yourhomes24.es

Nave Industrial en Venta en Alhendin

(Alhendin)

1.200.000 €
Ref: 10881/2045
Descripción

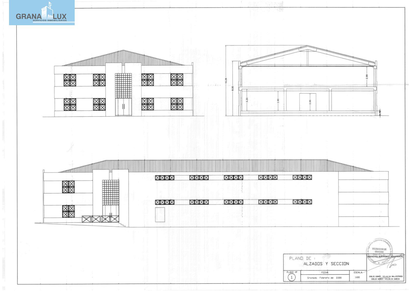
Amplia NAVE INDUSTRIAL, con fácil acceso y en PERFECTO ESTADO.

Construida sobre un solar de 2.500 mts, de los cuales están edificados 1000 mts y resto sin edificar, distribuidas en varias dependencias y servicios.

Cuenta con cuatro entradas desde la calle, montacargas, muelle de carga, PARKING exterior para una veintena de coches, instalación eléctrica, enchufes auxiliares, grandes armarios empotrados en muchas de las salas, todas ellas climatizadas, caja fuerte y varias escaleras de acceso entre las plantas.

Cabe destacar su luminosidad gracias a sus grandes ventanas.

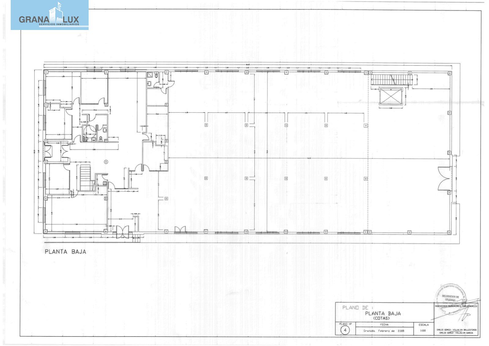
PLANTA BAJA, 1000 metros cuadrados donde encontramos tres despachos, dos salas grandes, pequeño almacén, lavadero, dos aseos (hombre y mujer) en la zona de oficinas. Resto de la planta totalmente diáfana con un aseo mas.


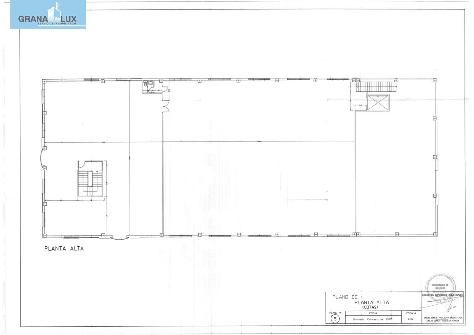
PLANTA ALTA 800 metros cuadrados, distribuidas en varias oficinas, una gran sala, otra dedicada a comedor con cocina, aseo, habitación para el personal con taquillas y pequeño montacargas que conecta con las oficinas de la planta baja. Resto diáfano.

PLANTA SOTANO 205 metros cuadrados.


El PVP indicado no incluye impuestos ni gastos de Escritura. Honorarios agencia no incluidos. **Las superficies expresadas en esta página tienen carácter descriptivo y son aproximadas. Los precios pueden ser susceptibles de modificación sin previo aviso. *Esta nave industrial se vende sin muebles."











Información
Nave Industrial
2500 m²
Otras Características
Acondicionado:
Necesita Reforma:
Amueblado:
A. Acondicionado:
Almacen:
Luminoso:
Teléfono:
Inst. Elec.:
Hilo Musical: