+34 600 075 507

info@yourhomes24.es

Oficina en Alquiler en Alfafar

(Alfafar)

6.877 €/mes
Ref: 2016
Descripción

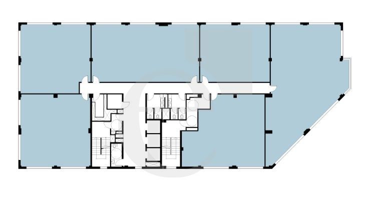
Oficina de 917 m2 construidos en Edificio exclusivo de Oficinas en Valencia, junto al parque comercial Alfafar. Bien comunicada, cerca de parada de bus de MN4 y muy bien conectado con Valencia ciudad, Puerto y Zona ZAL por tener acceso directo desde la V-31.
Se trata de la planta completa del edificio, que se puede alquilar diáfana o separada por tabiques, adaptada a cada necesidad.Es un oficina a estrenar en un edificio con calidades de primera y mucha luz natural. Está acondicionado con suelos de madera, fachadas acristaladas, suelo técnico, aire acondicionado con climatización individual. Dispone de tres ascensores de acceso a plantas, vigilancia 24 horas y control de accesos. Los aseos están en las zonas comunes, y cuentan con baño adaptado en cada planta. Gastos de la comunidad y plazas de garaje en el mismo edificio incluidas en la renta.



Información
Oficina
917 m²
Otras Características
Acondicionado:
Necesita Reforma:
Amueblado:
A. Acondicionado:
Almacen:
Luminoso:
Teléfono:
Inst. Elec.:
Hilo Musical:
Localización
Visualizar ubicación en Google Street View
(Recordatorio: Este servicio depende exclusivamente de Google y no está disponible para todas las ubicaciones)