+34 600 075 507

info@yourhomes24.es

Oficina en Venta en Valencia

(Valencia)

340.000 €
Ref: 1980
Descripción

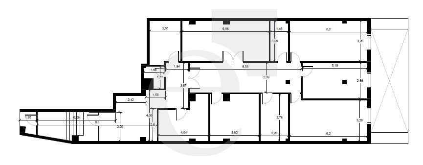
Oficina en planta baja de 221 m2 útiles, actualmente compartimentado con mamparas, pero fácilmente convertible a un espacio diáfano. La oficina cuenta con tres grandes ventanales al fondo de la misma que dan acceso a una terraza privativa de unos 15 m2, suelo de mármol y techo registrable. Tiene la instalación de aire acondicionado hecha por conductos, aunque la máquina no funciona, pero sería negociable con la propiedad su puesta a punto. Además, tiene dos baños, uno de ellos adaptado para minusválidos y con ducha.La oficina se sitúa entre Guillem de Castro y Paseo de la Pechina, a escasos metros del IVAM y de las torres de Quart, junto al cauce rio Turia, frente a la estación de autobuses y Nuevo Centro.

Información
Oficina
240 m²
Otras Características
Acondicionado:
Necesita Reforma:
Amueblado:
A. Acondicionado:
Almacen:
Luminoso:
Teléfono:
Inst. Elec.:
Hilo Musical:
Localización
Visualizar ubicación en Google Street View
(Recordatorio: Este servicio depende exclusivamente de Google y no está disponible para todas las ubicaciones)