+34 600 075 507

info@yourhomes24.es

Chalet a cinco minutos de Leon

Dalt Sant Joan-Plaça Eivissa, Maó (Valdefresno)

155.000 €
Ref: C000096
Descripción

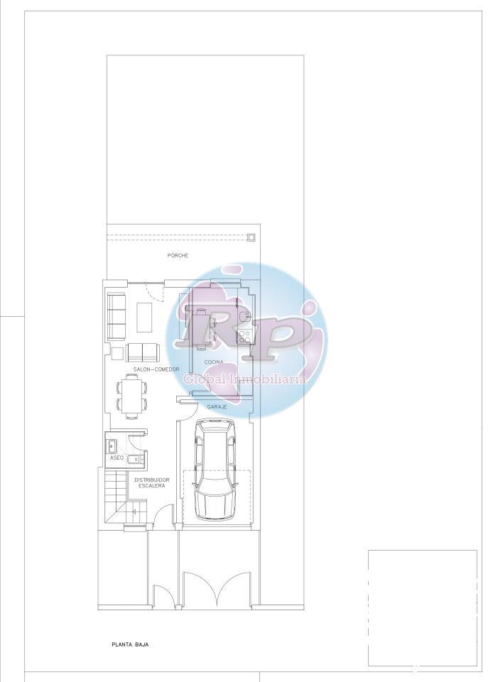
CHALET a estrenar,con buenas calidades a 5 minutos del centro de León. Si quieres vivir en un entorno de naturaleza cerca de León este es tu sitio.
Las comodidades de un piso en un chalet. Dispone de tres dormitorios dobles, uno tipo suite. Amplio salón con acceso al porche y jardín al igual que la cocina.
Dispone de garaje en planta con acceso directo a la vivienda.
Disfruta de un chalet con porche y jardín.
Consúltenos condiciones de compra y reserva.
Conseguimos financiación a medida si lo necesita.

Información
140 m²
3 hab.
3 Baños
Otras Características
:
Adosada:
Calefacción:
Garaje:
Terraza:
Luminoso:
Vistas:
Exterior:
Finca:
Vistas a la montaña:
Certificado Energético