+34 600 075 507

info@yourhomes24.es

Cala de Sant Antoni (Ourense)

57.000 €
Ref: C000165
Descripción

VENTA CASA PIEDRA CASTRO DE BEIRO

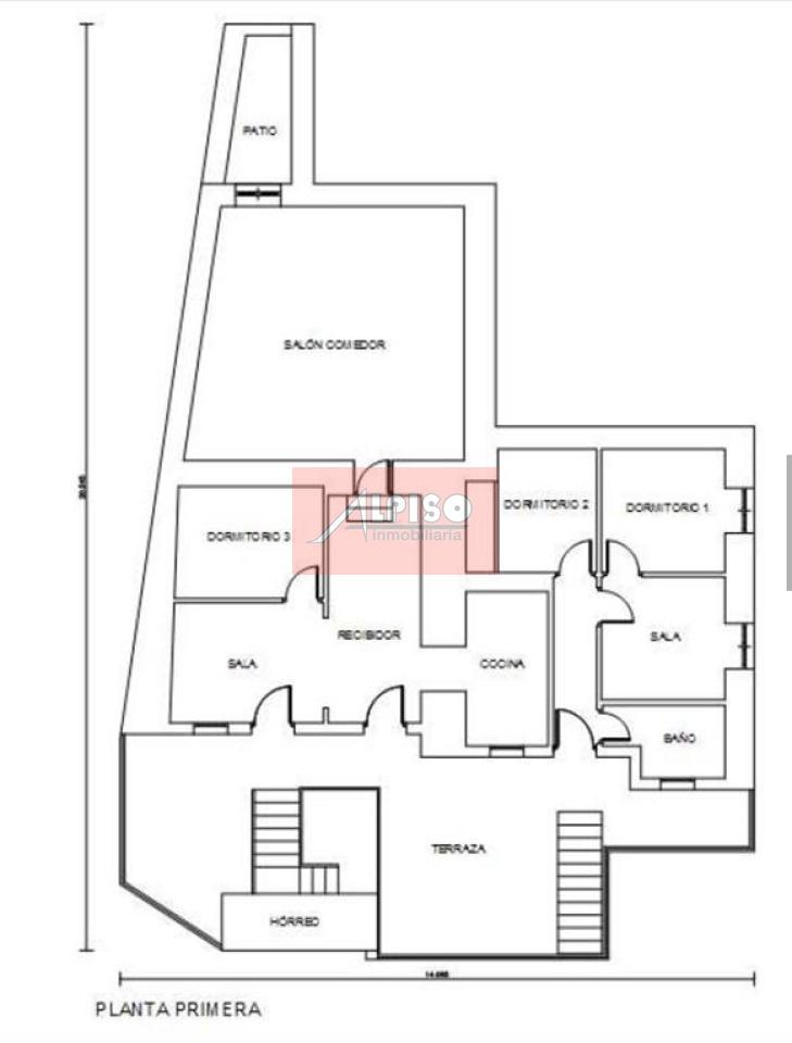
Vivienda unifamiliar aislada de 250 m2 útiles, desarrollada en dos plantas: Está situada en la zona de Castro de Beiro, con parada de bus urbano delante de la casa.

Planta baja destinada a zaguán, almacén y bodega;

Planta primera con salón-comedor, cocina independiente, dos salas, tres dormitorios, un baño y terraza cubierta con hórreo. En la vivienda se han realizado obras, pero necesita reformas y acondicionamiento. Suelos de tarima. Está registrada.

Para más información visite nuestra oficina en C/ Valle Inclán nº3, galerías Santo Domingo o llámenos al 988 241 993.

Información
250 m²
4 hab.
1 Baños
Otras Características
Año de Cons: 1976
Necesita Reforma:
Calefacción:
Terraza:
Bodega:
Cocina Amueblada:
Luminoso:
Vistas:
Exterior:
Vistas a la montaña:
Certificado Energético