+34 600 075 507

info@yourhomes24.es

CASA UNIFAMILIAR 2 PLANTAS INDEPENDIENTES CON 1584 M2 FINCA

Lavadores-Sárdoma (Vigo)

320.000 €
Ref: C000445
Descripción

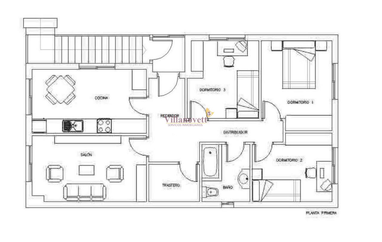
En la zona de Sárdoma, parroquia de Lavadores, se vende Casa unifamiliar de 213 m2., con 2 plantas independientes (ideal para 2 familias), la fachada es mixta, la planta baja (78 m2) es de piedra y la planta primera (78 m2) es de fábrica de ladrillo revestido y pintado.

La vivienda se distribuye como sigue: En la planta baja hay una vivienda de 2 dormitorios, amplio salón - cocina americana amueblada y un cuarto de baño con plato de ducha y un cuarto trastero, y anexo a la planta baja hay una zona de almacén-garaje que junto con el fallado suman 57 m2., y la planta primera (a la cual se accede por escaleras exteriores) consta de 3 dormitorios, salón, cocina amueblada e independiente, un cuarto de baño con bañera y un cuarto trastero.

La Casa se encuentra emplazada en una finca de 1.584 m2, cerrada en piedra y alambrada, con 1 hórreo y árboles.

El inmueble se encuentra en buen estado de conservación y buen acceso y comunicación, con colegios cerca y parada de autobuses.

Precio 320.000.-euros. Para más información o ir a verla llame a José Luis 678 89 66 13.

Información
213 m²
5 hab.
2 Baños
Otras Características
Calefacción:
Garaje:
Trastero:
Cocina Amueblada:
Luminoso:
Exterior:
Finca:
Certificado Energético