+34 600 075 507

info@yourhomes24.es

CASA DE PLANTA BAJA CON TERRENO Y CASITA DE INVITADOS EN SAN CIPRIAN DE VIÑAS

San Cibrao das Viñas (San Cibrao das Viñas)

165.000 €
Ref: C154141
Descripción

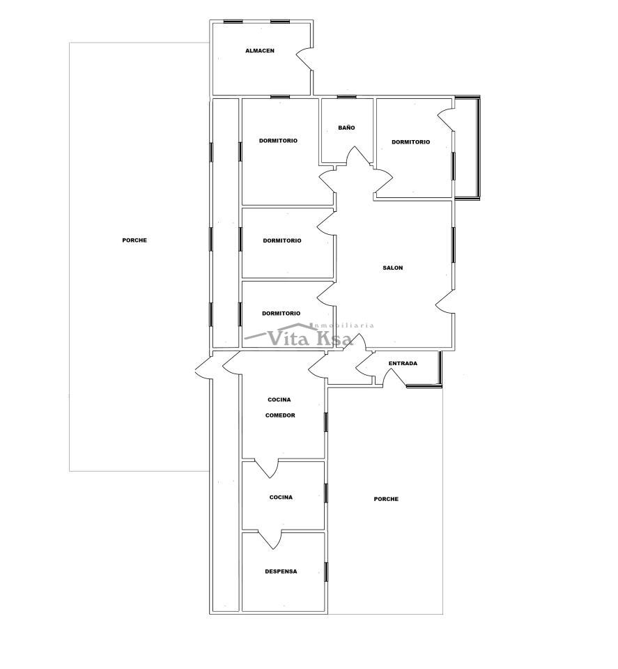
VitaKsa vende en exclusiva casa con finca de unos 3.000m2 en Santa Marta, en el ayuntamiento de San Ciprian de Viñas. Al lado del polígono, y muy cerca de Orense. La finca, tiene varios accesos, pozo, cierra, huerta....en ella, nos encontramos una construcción ideal como casita de invitados, en la que tenemos un pequeño salón cocina, 1 dormitorio y 1 cuarto de baño con ducha.
Ya, la propiedad principal, es una construcción de planta baja, de unos 100-120 m2 donde hay una cocina con despensa y lavadero. Al lado de la cocina, está el comedor con una cocina bilbaína. Por otro lado, dispone de 4 dormitorios, baño, aseo y salón. La casa está rodeada de galerías lo que le confieren un alto nivel de eficiencia, donde el resultado es una clase B. La calefacción, es mediante una estufa de pellets y adicionalmente una chimenea.
Una excelente oportunidad, para quien busca una casa cerca de Orense, en entorno tranquilo y a buen precio.
Consúltenos!!!

Información
104 m²
4 hab.
2 Baños
Otras Características
Año de Cons: 1989
Calefacción:
Garaje:
Amueblado:
Cocina Amueblada:
Luminoso:
Exterior:
Finca:
Vistas a la montaña:
Certificado Energético